Bad Soden-Salmünster:
Moderne Büro- und Gewerbeeinheiten im Neubau – flexibel planbar | Erstbezug ab 2027
Objekt-Nr.: BSS-GKS5658-B1


















Mietpreis zzgl. NK:
1.620 € pro Monat
Gesamtfläche ca.:
200 m²
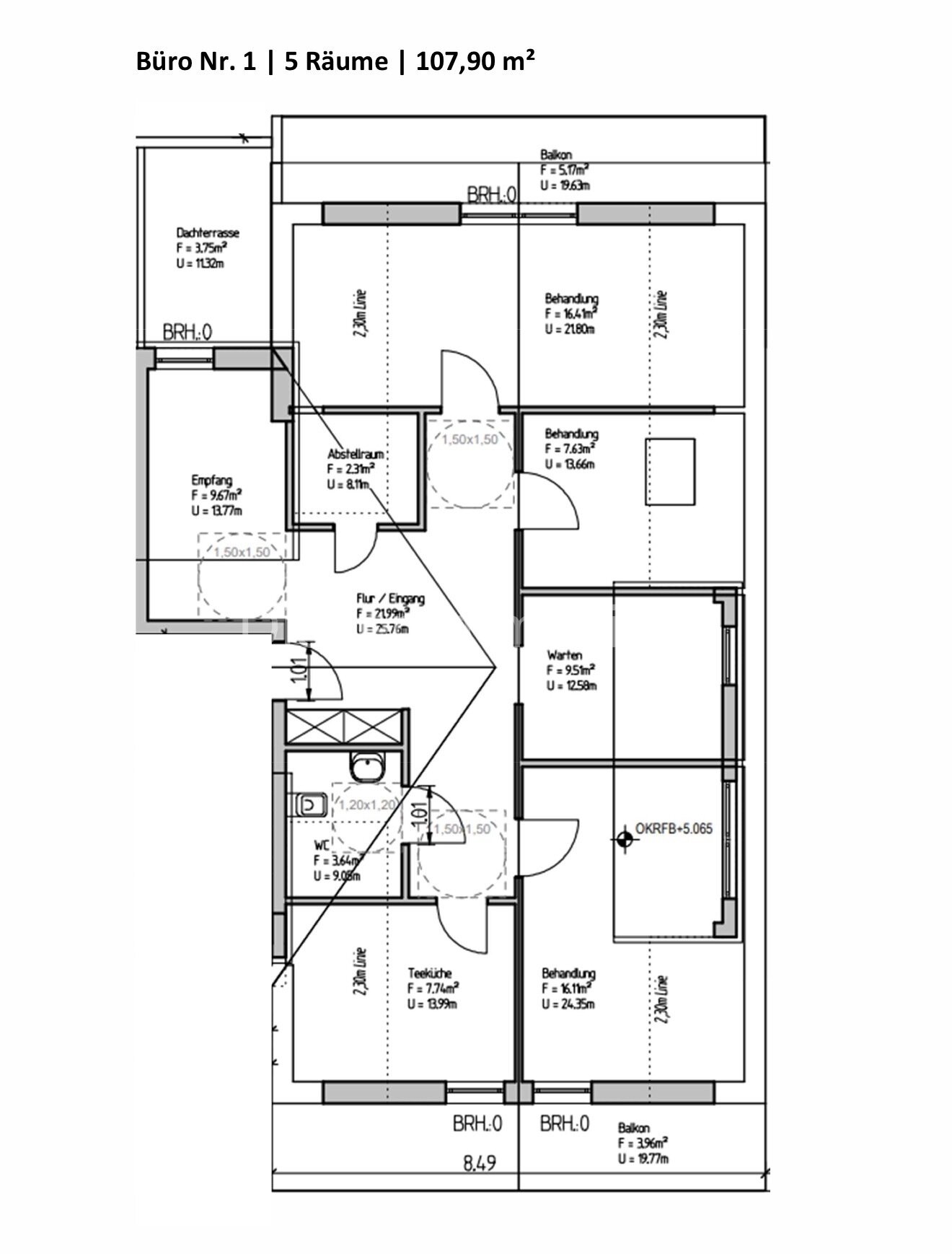
Büro-/Praxisfläche ca.:
107,90 m²
In attraktiver Lage entsteht ein modernes Wohn- und Geschäftsensemble, bestehend aus zwei architektonisch identischen Neubauten mit hochwertiger Ausstattung und zukunftsorientiertem Nutzungskonzept. Die bezugsfertige Übergabe der Gewerbeeinheiten ist voraussichtlich ab dem 01.04.2027 vorgesehen.
Die modernen Büro- und Gewerbeflächen befinden sich im 2. Obergeschoss/Dachgeschoss der Gebäude und überzeugen durch eine repräsentative Architektur, helle Räume sowie vielseitige Nutzungsmöglichkeiten. Mit großzügigen Flächen von ca. 107,90 m² und ca. 91,76 m² bieten die Einheiten ideale Voraussetzungen für Büros, Kanzleien oder freiberufliche Tätigkeiten.
Ein besonderer Vorteil: Der Grundriss kann sich aktuell noch individuell an Ihre betrieblichen Anforderungen anpassen lassen, sodass eine optimale Gestaltung Ihrer zukünftigen Arbeitsräume möglich ist.
Großzügige Balkone sowie eine attraktive Dachterrasse schaffen zusätzliche Aufenthaltsbereiche und bieten ideale Rückzugsorte für Pausen oder informelle Gespräche in angenehmer Atmosphäre.
Ein Aufzug ermöglicht einen komfortablen und barrierefreien Zugang zu allen Etagen. Für Mitarbeiter, Kunden und Besucher stehen eine Tiefgarage sowie zusätzliche Außenstellplätze zur Verfügung.
Diese Gewerbeeinheiten verbinden moderne Architektur, flexible Gestaltungsmöglichkeiten und eine hochwertige technische Ausstattung zu einem zukunftssicheren Unternehmensstandort.
Nebenfläche ca.: 7,86 m²
Nebenkosten: 370 € pro Monat
Kaution: 4860,00
Qualität der Ausstattung: gehoben
Baujahr-Gebäude: 2027
Zimmeranzahl: 5
Etage: 2
Etagenanzahl: 2
Anzahl der Parkflächen: 3 x Außenstellplatz, pro Stück 35 €; 1 x Tiefgarage, pro Stück 65 €
Fahrstuhl: ja
Barrierefrei: ja
Bodenbelag: Fliesen
Zustand: Erstbezug
Fußweg zu Öffentl. Verkehrsmitteln: 5 Minute(n)
Fahrzeit zum nächsten Hauptbahnhof: 7 Minute(n)
Fahrzeit zur nächsten BAB: 4 Minute(n)
Fahrzeit zum nächsten Flughafen: 45 Minute(n)

Dieser Immobilien
Frau Violeta Dieser
Bernhardstr.17
63755 Alzenau
Telefon: +49 6023 4090527
Mobil: +49 176 24835336
Gustav-Kastropp-Str. 56 + 58
63628 Bad Soden-Salmünster
Main-Kinzig-Kreis
Hessen

